
Wohnen in der
schönsten Form
Balkone mit Domblick
Im Bereich östliche Leipziger Straße dürfen sich die Mieter über Balkone und Wärmedämmung freuen!
Mit der Planung im Jahr 2020, in der Helmholtzstraße 15 bis 45 Balkone anzubauen und in diesem Zusammenhang die hofseitige Fassade zu dämmen, hat alles begonnen.
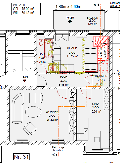
Die Balkone, mit der Dimension 4,60 m x 1,80 m, werden ausschließlich hofseitig angeordnet. Von dort aus haben viele Mieter einen wunderschönen Blick auf unseren Dom. Der Zugang zum Balkon erfolgt über die Küche. In Ausnahmefällen ist der Zugang vom Kinder- bzw. Arbeitszimmer möglich.
Im vergangenen Jahr fanden die Mietergespräche in den Wohnungen statt. Wie bei jedem geplanten Balkonanbau haben Mitarbeiter aus der Technik sowie aus dem Service die Mieter persönlich besucht und die bevorstehenden Baumaßnahmen ausführlich vor Ort erläutert und erste Fragen beantwortet. Wir haben weitestgehend positives Feedback erhalten, ganz unter dem Motto: „Das hätten Sie schon vor Jahren machen können!“. Eine größere Motivation, um auch in anderen Quartieren zukünftig Balkone anzubauen, kann es für uns nicht geben. Natürlich nur, wenn die Voraussetzungen dafür erfüllt sind.
Darüber hinaus ist uns in den letzten Wochen ein lieber Mieterbrief zugestellt worden, den Sie in der Bildergalerie lesen können.
Im Zuge des Balkonanbaus wird die hofseitige Fassade gedämmt. In der heutigen Zeit, in der die Gas- und Ölpreise fast täglich steigen, ist ein Wärmedämmverbundsystem eine gute Voraussetzung zur Einsparung von Heizenergie. Weiterhin erhalten die Treppenhäuser einen neuen Anstrich und der Müllplatz an der Helmholtzstraße 45 wird umverlegt.
Das Investitionsvolumen beträgt für die Baumaßnahme 1,1 Millionen Euro, welches natürlich auch über eine anteilige Modernisierungsumlage refinanziert werden muss. Sicherlich ist es für den einen oder anderen Mieter eine hohe finanzielle Belastung. Wir als Genossenschaft möchten für unsere Genossenschafter die Mieten auf einem vertretbaren Niveau halten, sodass die Modernisierungsumlage bei einer Kaltmiete in Höhe von 6,50 €/qm gekappt wurde.
Die Baumaßnahme soll bis Mitte Juli 2022 abgeschlossen sein. Die Mieter können also den Spätsommer bereits auf Ihren neuen Balkonen genießen.
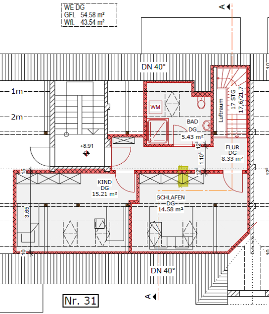
Der Wohnraum für Familien mit mehreren Kindern ist in dem Quartier östliche Leipziger Straße knapp bemessen. Deshalb haben wir uns im Zuge der Baumaßnahme entschlossen, in der Helmholtzstraße 31 eine 4-Raum-Maisonette-Wohnung mit ca. 112 m² auszubauen. Die geplanten Grundrisse für die zwei Etagen sehen Sie ebenfalls in der Bildergalerie. Der Bauantrag wurde in der 39. KW 2021 eingereicht. Jedoch liegt uns derzeit die Baugenehmigung noch nicht vor.