Wohnen in der
schönsten Form
15.12.2025 - Bauprojekte im neuen Jahr
Großprojekt in der Rödelstraße: Mehr Platz und bessere Energiebilanz
In der Rödelstraße 2–26 in Stadtfeld-Ost steht eine umfassende Modernisierung bevor. Geplant ist der Anbau von insgesamt 78 Balkonen sowie die energetische Sanierung der Fassade. Straßenseitig und hofseitig wird das Gebäude mit einem Wärmedämmverbundsystem (WDVS) ausgestattet, um den Energieverbrauch deutlich zu senken und den Wohnkomfort zu steigern.
Die neuen Balkone schaffen zusätzlichen Raum für Erholung, Pflanzen oder ein Frühstück an der frischen Luft – ein echter Gewinn für die Lebensqualität. Gleichzeitig sorgt die Dämmung dafür, dass die Wärme im Winter länger in den Wohnungen bleibt und im Sommer die Hitze draußen. Das bedeutet spürbare Einsparungen bei den Heizkosten und ein angenehmes Raumklima zu jeder Jahreszeit.
Der Bauantrag wurde bereits eingereicht und auch die Mietergespräche zur Vorbereitung fanden im Dezember statt. Die Arbeiten sollen dann gut vorbereitet im Frühjahr 2026 starten. Mit dieser Maßnahme investieren wir in die Zukunft des Wohnens: energieeffizient, komfortabel und modern.
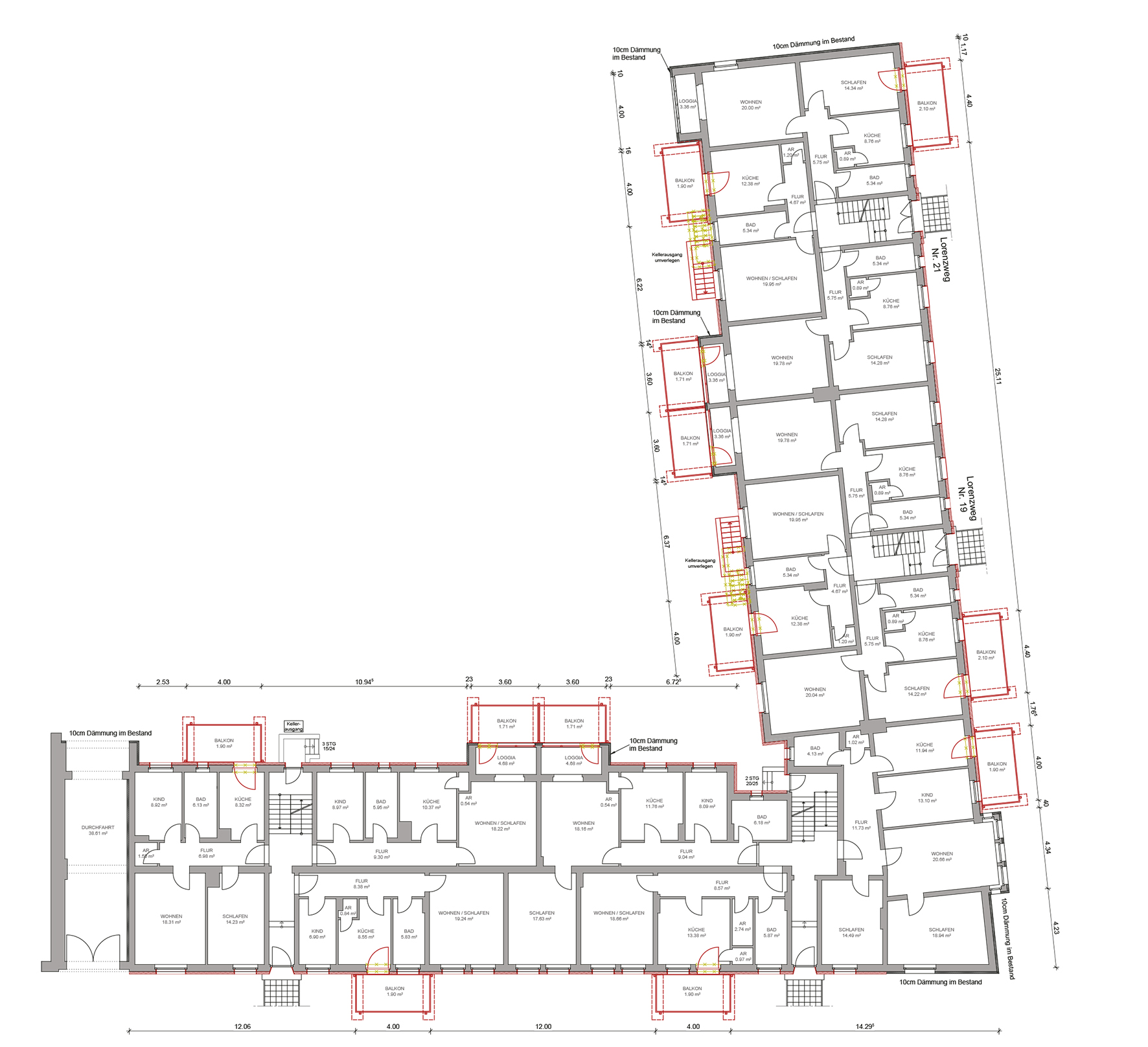
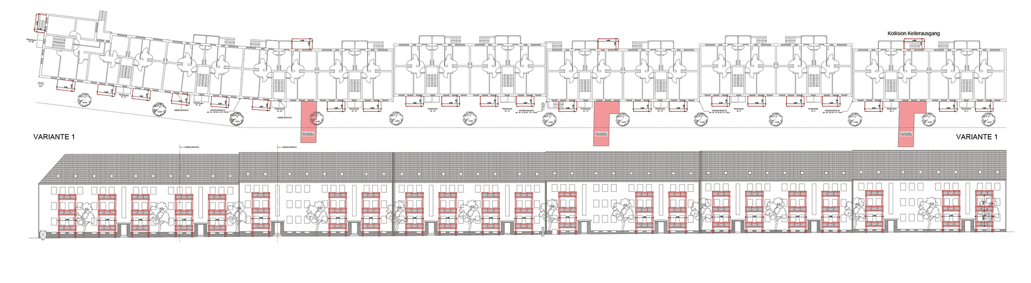
Frischer Wind für die Alte Neustadt: Balkone und bessere Dämmung
Die Häuser Lorenzweg 19 und 21 sowie Bachstraße 3–5 stehen vor einer echten Aufwertung. Geplant ist ein Projekt, das Wohnen noch angenehmer macht: 36 neue Balkone entstehen und schaffen Platz für kleine Gärten, gemütliche Sitzplätze oder einfach einen Moment an der frischen Luft.
Parallel dazu werden die Fassaden umfassend modernisiert. Mit einer energetischen Dämmung auf beiden Seiten – zur Straße und zum Hof – bleibt die Wärme künftig dort, wo sie hingehört: in den Wohnungen. Das sorgt für ein behagliches Raumklima und hilft, Heizkosten zu senken. Gleichzeitig erhält das Quartier ein neues Gesicht: Die frische Farbgestaltung bringt mehr Freundlichkeit und Modernität ins Wohnumfeld.
Die Vorbereitungen laufen bereits: Im November 2025 fanden die Mietergespräche statt, um alle Details zu klären. Der Bauantrag ist ebenfalls eingereicht, sodass die Arbeiten im Frühjahr 2026 starten können. Mit dieser Maßnahme investieren wir in ein modernes, energieeffizientes und lebenswertes Wohnumfeld – zum Vorteil aller, die hier zuhause sind.